Z nami buduj inaczej!
Twoja platforma projektowa
TURO reprezentuje połączenie rewolucyjnej aplikacji i codziennej pracy naszych inżynierów, dzięki którym jesteśmy w stanie połączyć ze sobą skomplikowany świat projektowy z codziennymi problemami budowy.
Zaloguj się

Wszystko w
jednym miejscu
wykonawcze

czas i pieniądze

Co zyskujesz?
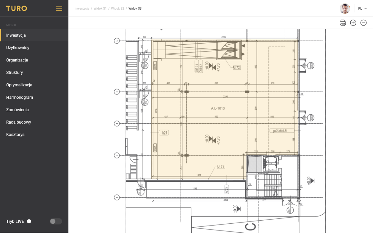
TURO oferuje nowoczesną technologię, która tworzy interaktywne mapy placów budowy, w wersji bieżącej i docelowej zgodnej z projektami wykonawczymi budynków. Dzięki tym rozwiązaniom i naszej aplikacji zapewniamy pełną obsługę zarządzania, udostępniania i aktualizacji dokumentacji dla obecnych na budowie wykonawców, inspektorów budowlanych, menadżerów projektów i innych.

Dedykowany zespół specjalistów
Specjalnie dobrana grupa inżynierów czuwa nad aktualnością, przejrzystością i spójnością dokumentacji projektowej
Wypróbuj już dziś!
Rewolucyjna aplikacja
Jedno kliknięcie na dowolny element mapy budynku np. elewację pozwala uzyskać wszystkie aktualne informacje na jej temat.
Wypróbuj już dziś!
Nasza obecność na budowie
Nasza obecność na budowie zapewnia możliwość raportowania postępu prac oraz tworzenia spójnej dokumentacji powykonawczej
Wypróbuj już dziś!





Proces

Przekazanie projektu do TURO

TURO tworzy/aktualizuje interaktywne mapy budynku

TURO wgrywa, segreguje i aktualizuje dokumentację

Udostępnianie dokumentacji na platformie TURO
Dlaczego TURO?
Jesteśmy zespołem ekspertów z dziedziny inżynierii, koordynacji dokumentacji i administracji danych. Efektem naszej pracy jest ograniczenie błędów wykonawczych, zmniejszenie kosztów i dezinformacji oraz przygotowana na koniec jednolita i cyfrowa dokumentacja powykonawcza całej inwestycji.

Wszystko w
jednym miejscu
technologię

wykonawcze

czas i pieniądze

Napisz do nas!
Bardzo chętnie spotkamy się z Państwem i przedstawimy całość możliwości TURO. Podczas prezentacji odpowiemy na wszystkie pytania i podpowiemy jak używać naszej technologi by wspólnie BUDOWAĆ INACZEJ!




